planning | permaculture | jun 2022

Vegetarian housing

Concentric lifestyle in lisbjerg

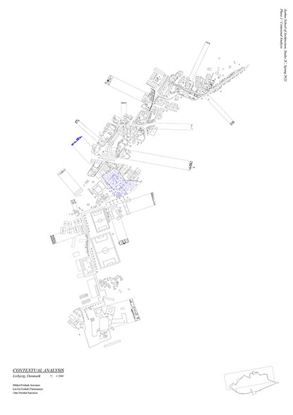
The project takes place in the transitional area between the original city of Lisbjerg and a new development area for 25,000 residents. It’s the declared goal of Aarhus Municipality to create a 'new sustainable district', and this provides the opportunity to discuss how such a district can be designed. The project seeks a radical approach, where the site becomes its own closed ecosystem. Where considerations about water, heating, and wastewater treatment is seen as architectural elements in the development.

 

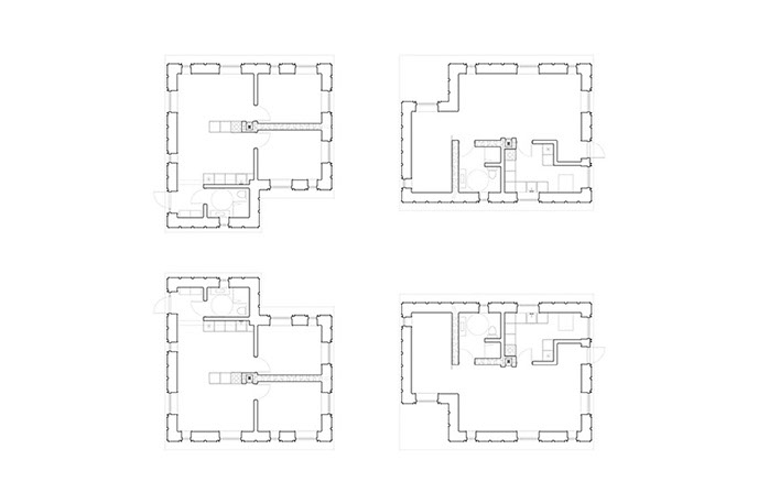
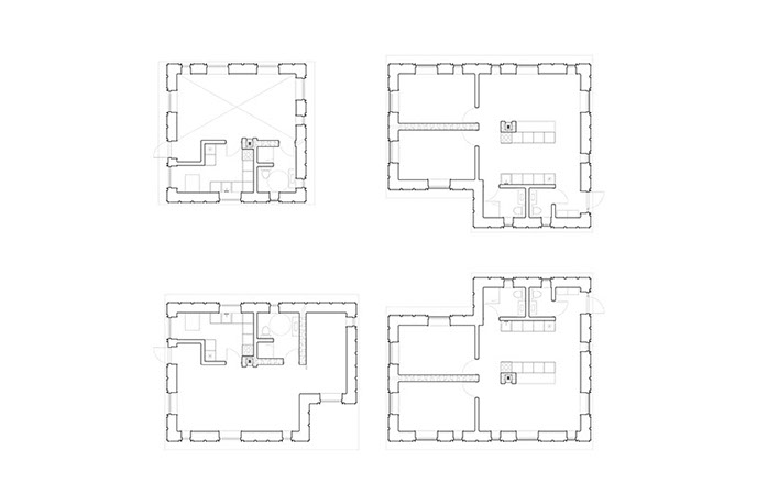
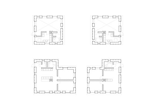
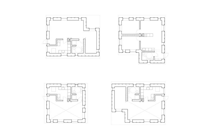
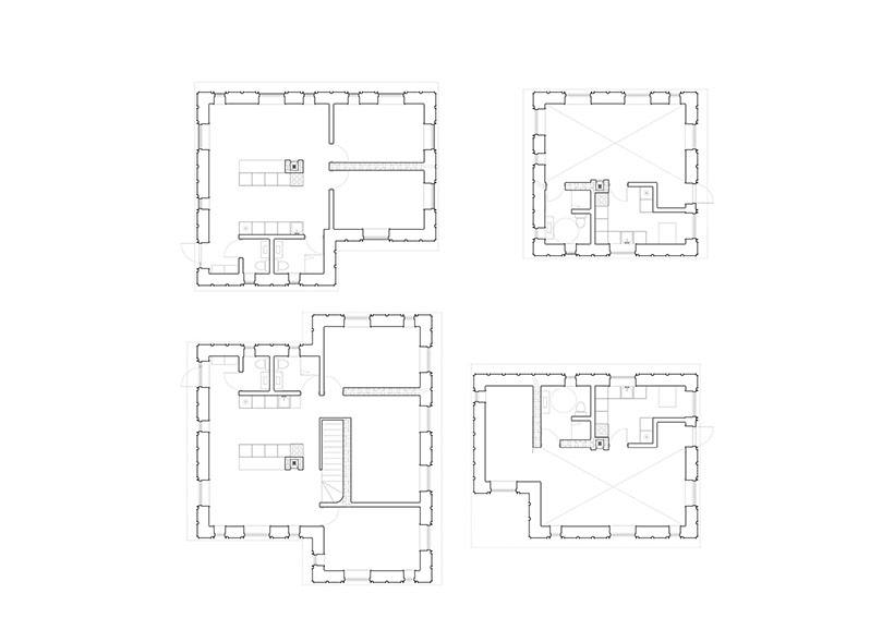
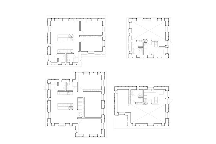
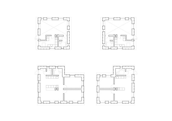
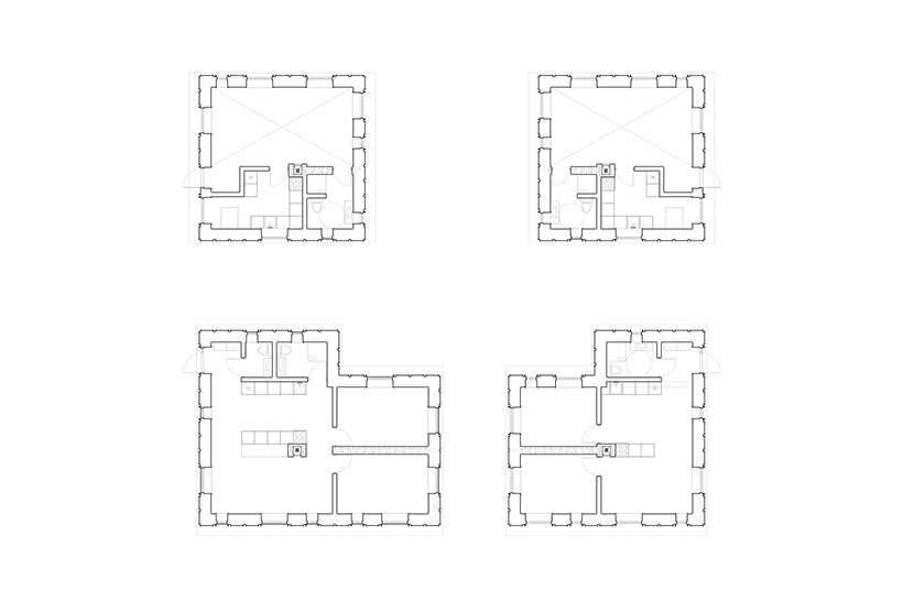
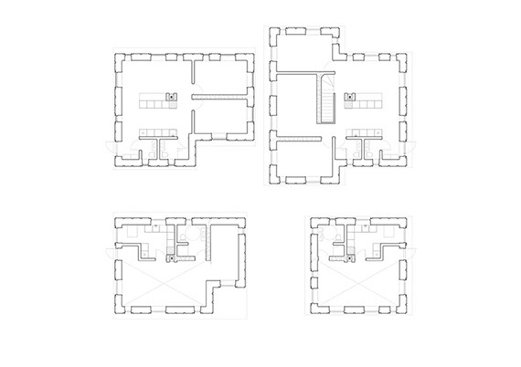
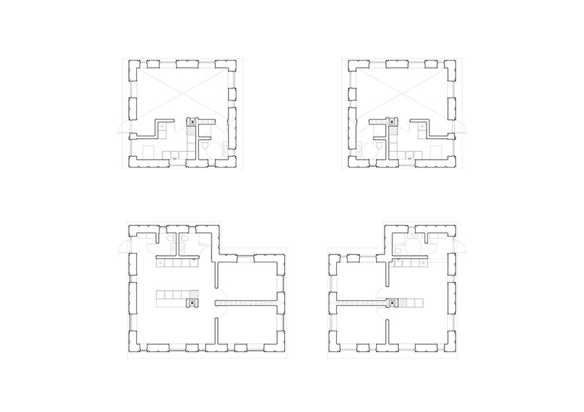
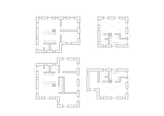
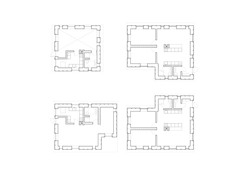
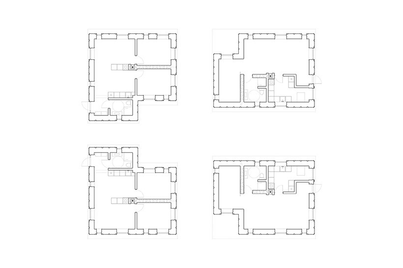
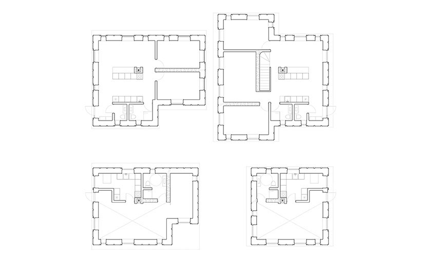
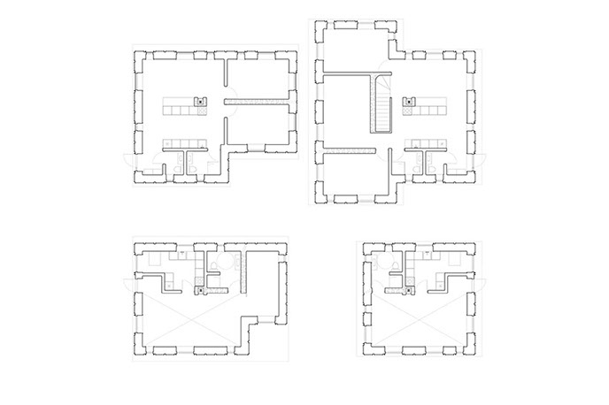
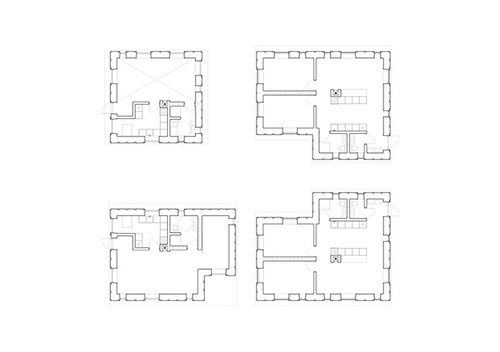
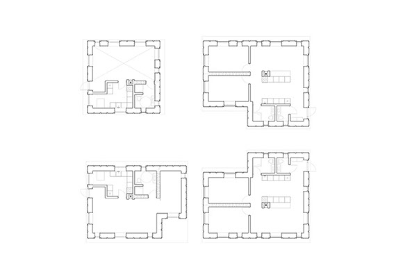
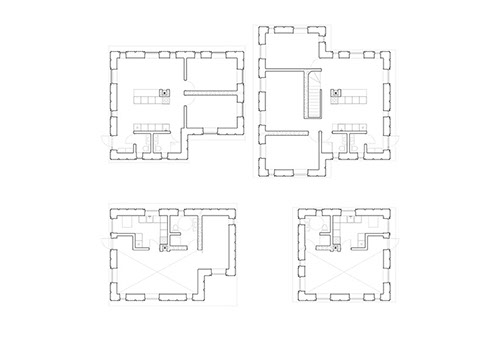
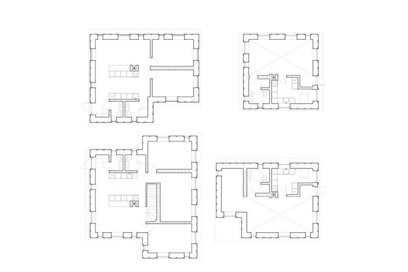
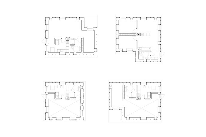
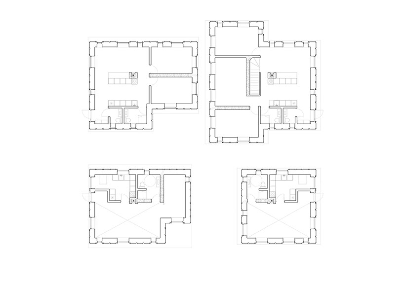
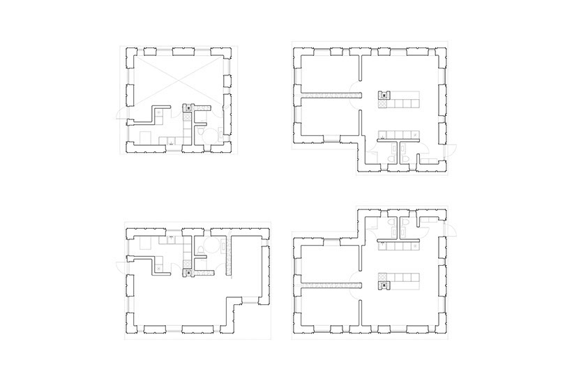
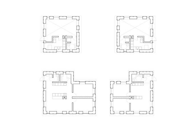
Based on permacultural principles, 27 homes and a communal house is erected, along with several greenhouses, raised beds, and water reservoirs. The distribution of the sparse space is designed to form spatial niches and changes in the density and size of the homes. The self-sufficient homes are grouped in clusters of four, each with their own furnace as a heat source. The produced smoke is then 'washed' and the nutrient of the pollution is converted into a resource for food production. Through the interaction of different plants, the settlement also manages to purify the residents' wastewater and enable a sustainable food production without the use of artificial fertilizers. Furthermore, the natural slope of the land is used to collect and utilize rainwater for domestic use.

 

The houses are constructed from compostable building materials and are centrally heated by a mass oven made of unburnt clay stones. The rooms are designed so that the heat is directed from the primary to the secondary rooms through a cavity wall, from where passive heat is slowly emitted. The modular homes are based on two different floor plans. One where the service functions are separated from the primary living space, and another where the layout is an open kitchen-living room. From there, the homes can expand in size towards the center of the clusters as needed, with additional secondary rooms and spaces.

 

The proposal broadens our understanding of an 'ordinary citizen' and their daily life. By addressing individual resident demands and issues, the project attempts to solve many challenges through architecture.

 

See more about the project in the presentation.

IFrisbæk

StudioI

I

Context model 1:500

Interior illustration, furnace

Interior illustration, threshold

Mockup of threshold 1:1

credits

I hope that you find my work inspiring and I encourage you to use it as much as you like. I do however demand that you credit my work.

 

© 2019 Mikkel Frisbæk Sørensen

Website

This website is created with the intend to showcase undergraduate projects of my studies at Aarhus architecture school as well as personal projects. It is shared as an online work folio – and maybe an inspiration for others.